Proiectul de casă prezentat are destinația de locuință individuală și a fost conceput ca model de casă minimalistă. Suprafața desfășurată a acestui proiect este de 287 mp.
Fiind un proiect de casă mare, este recomandat pentru o familie formată din 3 persoane. Această casă a fost proiectată cu 6 CAMERE și 3 BĂI.
SUPRAFAȚA UTILĂ: – mp
SUPRAFAȚA DESFĂȘURATĂ: 287 mp
REGIM DE ÎNĂLȚIME: PARTER + 2 ETAJE
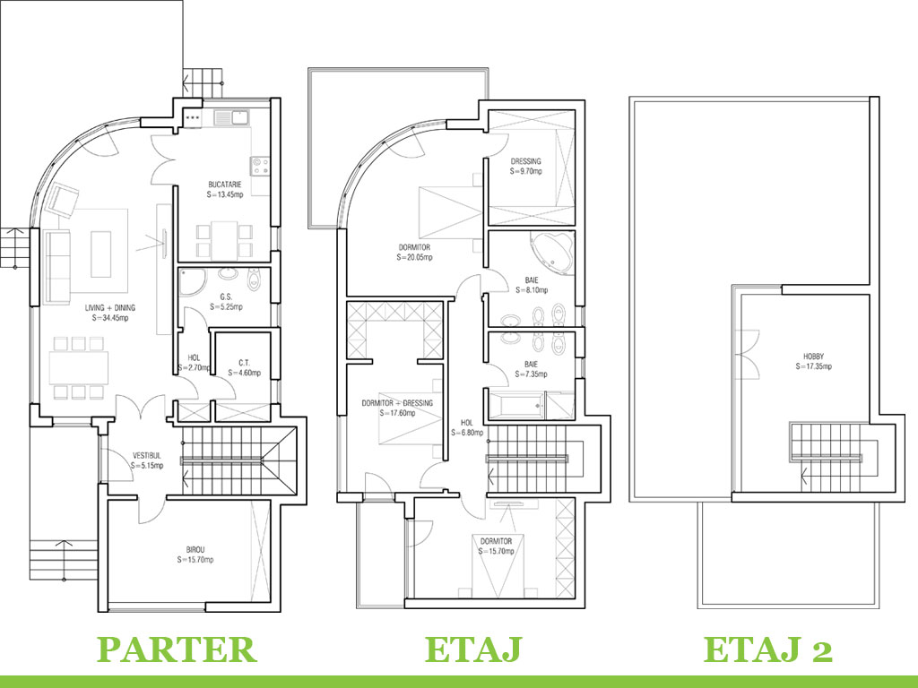
Suprafață parter:
- Vestibul: 5,15 mp
- Scara: 7,35 mp
- Birou: 15,7 mp
- Hol: 2,7 mp
- Camera tehnică: 4,6 mp
- Grup sanitar: 5,25 mp
- Living+Dining: 34,45 mp
- Bucătărie: 13,45 mp
Suprafață etaj:
- Hol: 6,8 mp
- Dormitor+Dressing: 17,6 mp
- Dormitor: 15,7 mp
- Baie: 7,35 mp
- Dormitor: 20,05 mp
- Dressing: 9,7 mp
- Baie: 8,1 mp
Suprafață etaj 2:
- Hobby: 17,35 mp
Proiectul NU dispune de mansardă.
SISTEMUL CONSTRUCTIV al acestui proiect de casă este din BETON ȘI ZIDĂRIE.
ALTE FUNCȚIUNI:
- Hobby room
- Birou
Proiectul a fost realizat de arhitect Frunză Alexandra Ioana.
Telefon: +40 730 609 659
Web: www.cautarhitect.ro
Contactează arhitectul folosind formularul de mai jos:

CEO la grupul Creative Art.
Îl recomandă experiența de Art Director și Publisher al revistelor Căminul, Bucătăria pentru toți, Bebelu, Industry Insights, și suplimentului ziarului România liberă.
